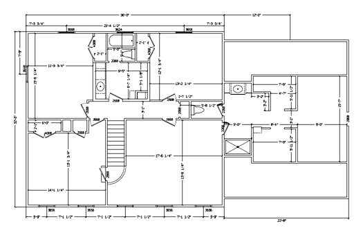
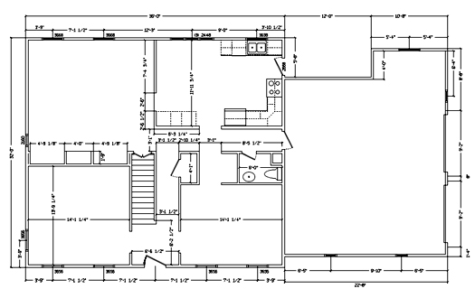
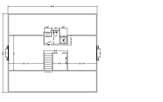
2 story Colonial house plans Columbus OH

back to Main Page

      3000 sq ft 4-bedroom 3-1/2 bath
        full finished basement.
   in Worthington. I designed and built this in 1992.

   I framed this house myself with one full-time helper, laid out the position on the lot and depth of excavation, formed and poured the footings, and poured / finished the basement slab.
   Also did all of the electric, HVAC, plumbing  and sewer tap (with permits & inspections) Also installed the roofing and siding, and all interior and exterior trim   Vince

Image
Image
Image
Image
Image
Image
Image
Image
Image
Image
Image
Image
Image
Image
Image
Image
Image
Image
Image
Image
Image